Dauerausstellung + Wettbewerb

FIFA MUSEUM

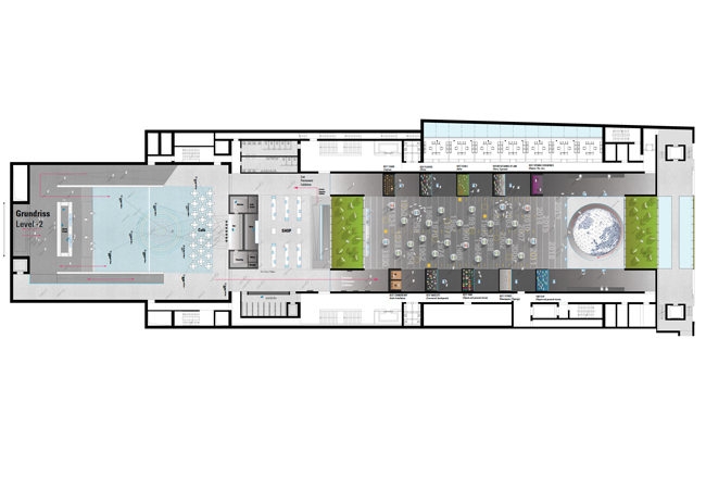
Projekt im Atelier Brückner, Stuttgart

Leistung (12/2012): Wettbewerbsteam, Weiterentwicklung des Ausstellungs-, Grafik-, Medienkonzeptes

Status: Nicht gewonnen, 2. Platz

Copyrights: Atelier Brückner

Im Atelier Brückner arbeitete Dirk Schubert am Konzept der 2. Phase des geladenen Wettbewerbs für das neue FIFA Museum in Zürich. Die im Wettbewerb definierte Architektur war ein Neubau der komplett unter die Erde geplant wurde. Eine Lange Rampe führte den Besucher in die unteren Geschosses entlang eines großen Atriums. Der Entwurf gliederte sich in fünf thematische und räumliche Einheiten „SPHERE OF FIFA (United Nations)“, „FIFA TIMELINE (Moments that lasts forever)“, „FIFA GLOBE (Developing a better future)“, „FIFA PLAYGROUND (the fascination of the game)“ und „FIFA FINAL (360° interactive film of e-motion)“. Unterschiedlich stark inszenierte und interaktive Bereiche schufen einen spannenden Parcours durch die Geschichte der FIFA.