Innenarchitektur

Amplify Office

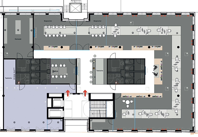
  • Schematischer Grundriss.

  • Location

Auftraggeber: Amplify

Leistung: LPH 1-8, Entwurf bis zur Fertigstellung

Status: In Progress

Eine Stuttgarter UX-Designbüro beauftragte  Atelier Schubert damit Ihre neuen Büroräumlichkeiten zu gestalten. Zentrale Idee des Entwurfs war ein „durchgehender“ Tisch bzw. der „Produktionskette“ die vom CEO-Tisch über die verschiedenen Arbeitsteams (Konzeption-Produktion) bis hin zum großen Besprechungsraum führt, in dem das „fertige“ Produkt präsentiert/verkauft werden kann. Darüber hinaus galt es, zusätzliche  Aufenthaltsflächen (individuelles Arbeiten, Kommunizieren, Relaxen, etc.) zu gestalten um dem Bedürfnis eines modernen, zeitgemäßen Arbeitsplatzes und -umfeldes (work&life) gerecht zu werden.